Notaires sûrement et pour longtemps! 

Maison à vendre à La Hague 125 m2 , 5 pièces

Descriptif du bien immobilier

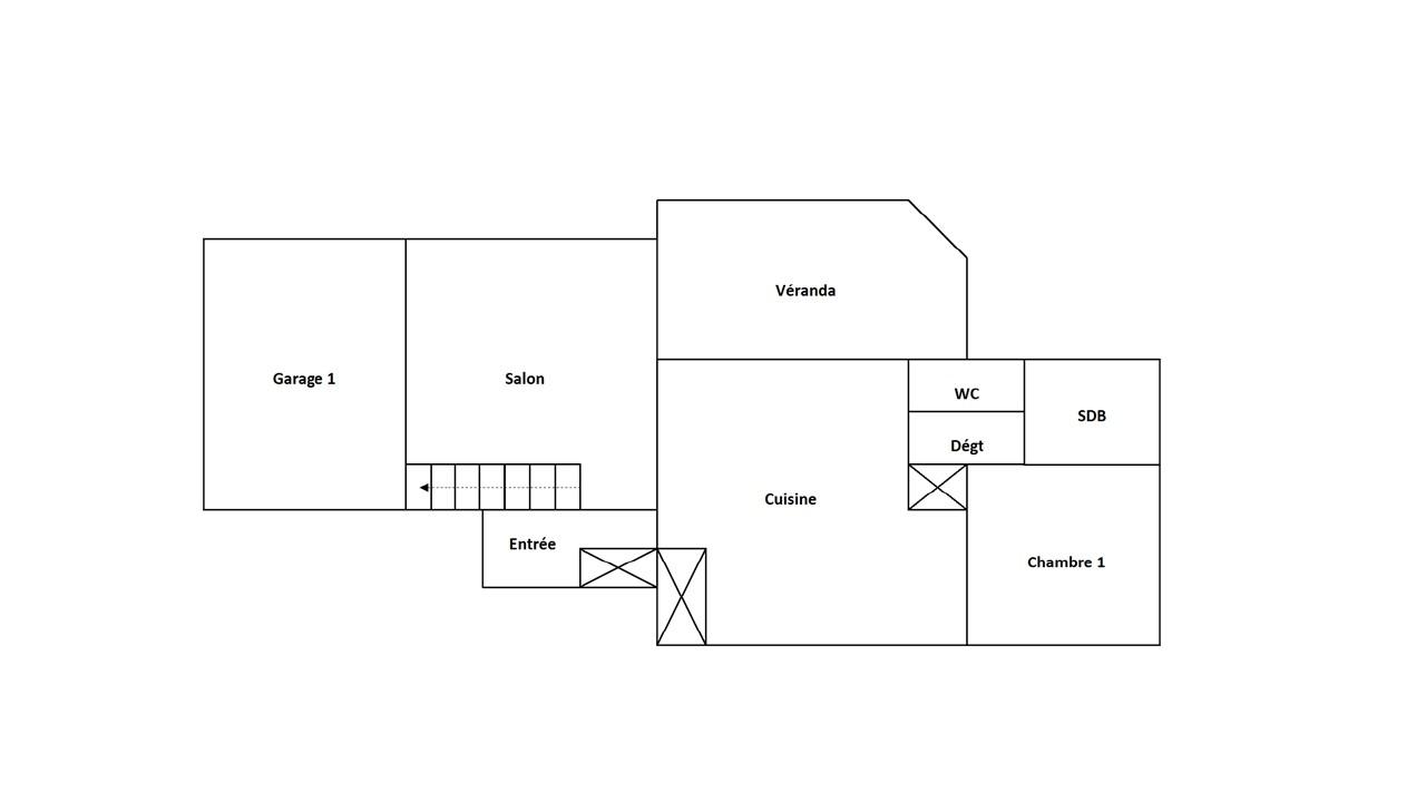
LA HAGUE, COUP DE COEUR PAVILLON PROCHE MER - ! VIDEOS DU BIEN DISPONIBLE SUR NOTRE INSTAGRAM : Etude Fontanet Dupont Manquet ! UNIQUEMENT CHEZ LES NOTAIRES Idéalement située à URVILLE NACQUEVILLE, dans le secteur du FORT, l'ETUDE FONTANET ET DUPONT-MANQUET vous propose ce PAVILLON INDEPENDANT AVEC COMMODITES DE PLAIN-PIED de 125.00m² habitable environ construit dans les années 1970 sur un terrain de 736.00m² avec ses 3 CHAMBRES, son GARAGE et sa PROXIMITE IMMEDIATE A LA MER. Ce pavillon est aménagé en : Au rez-de-chaussée : - Une entrée (5.70m²) avec penderie, - Une pièce de vie (23.00m²) exposée SUD avec mezzanine, - Une cuisine ouverte aménagée et équipée (23.00m²) avec salle à manger exposée NORD suivi d'une véranda (16.00m²) exposée SUD avec accès direct à la terrasse et au jardin, - Une chambre (12.50m²) avec penderie, - Une salle d'eau (4.00m²), - Un sanitaire indépendant suspendu avec lave-main, Au 1er étage : - Un palier mezzanine (6.50m²) desservant une chambre (9.00m²) avec rangements sous les rampants et une suite parentale (13.50m²) avec rangements sous rampants et dressing (6.70m²) desservant une salle de bains (5.30m²) et un sanitaire indépendant, Attenant, un garage (19.00m²) avec porte motorisée et buanderie, A l'avant, au NORD, une cour bitumée avec stationnement avec en fond, un second garage (17.00m²), A l'arrière, au SUD, sans vis-à-vis, une terrasse bois avec BBQ suivi d'un joli jardin clos de haies donnant sur la campagne, Huisseries en PVC double / Chauffage électrique, Taxe foncière : 710 € / an, Consommation en énergie THEORIQUE : 1900 à 2610 € / an, Suivez-nous sur les réseaux sociaux : - Facebook : Etude Fontanet & Dupont-Manquet - Instagram : Etude Fontanet Dupont Manquet Les informations sur les risques auxquels ce bien est exposé sont disponibles sur le site Géorisques : www.georisques.gouv.fr - Classe énergie : D - Prix Hon. Négo Inclus : 467 000,00 € dont 3,78% Hon. Négo TTC charge acq. Prix Hors Hon. Négo :450 000,00 € - Réf : 045/1689

Référence du bien : 045/1689

Diagnostics

Consommation énergétique (dont Émissions de gaz à effet de serre)

A
B
C
D
217.0
E
F
G
Économe
Énergivore
Diagnostic performances energétiques dpe
Consommations énergétiques (en énergie primaire) pour le chauffage, la production d'eau chaude sanitaire et le refroidissement
Indice de mesure : kWhEP/m2.an
A
B
6.0
C
D
E
F
G
Faible émission
Forte émission
Diagnostic performances energétiques ges
Consommations énergétiques (en énergie primaire) pour le chauffage, la production d'eau chaude sanitaire et le refroidissement
Indice de mesure : kWhEP/m2.an
467 000 € 450 000 € + Hon. de négo. TTC : 17 000 € Soit 3,78% à la charge de l'acquéreur Barème des honoraires de négociation
En bref
  • Surface habitable : 125 m2
  • Surface extérieure : 736 m2
  • Nombre de pièces : 5
  • Nombre de chambres : 3

SELARL B.FONTANET - ML.DUPONT-MANQUET - NOTAIRES ASSOCIES
Notaire

4 rue Becquerel
50100 CHERBOURG-OCTEVILLE
02 33 87 67 60 - 02 33 87 67 69
Nº SIRET ou SIREN : 322 366 139 00010
Nº TVA intra-communautaire : FR87 322 366 139

Formulaire de contact Tous les biens de l'étude
Image de signature

Contacter le notaire




Formulaire de contact
Vos informations personnelles (nom, prénom, email, téléphone, commentaire) sont collectées avec votre consentement et sont destinées à SELARL B.FONTANET - ML.DUPONT-MANQUET - NOTAIRES ASSOCIES en sa qualité de responsable du traitement. Ces informations sont collectées afin de répondre à votre demande de contact ou de renseignements. Ces informations ne sont pas stockées dans une base de données, elles sont uniquement transférées par email à SELARL B.FONTANET - ML.DUPONT-MANQUET - NOTAIRES ASSOCIES qui se chargera de supprimer ce dernier après avoir entièrement traité votre demande ou votre dossier.
Conformément à la loi "informatique et libertés" et au RGPD, vous pouvez exercer vos droits d'opposition, d'accès, de rectification, d'effacement, de limitation et de portabilité en effectuant une demande à l'adresse suivante : cil@notaires.fr. Vous pouvez également adresser une réclamation auprès de la CNIL directement via son site internet https://www.cnil.fr

MEDIATION : En cas de litige non résolu avec un notaire, vous avez la possibilité de saisir le Médiateur du notariat à l'adresse suivante : mediateurdunotariat@notaires.fr, ou à 60 boulevard de la Tour Maubourg 75007 Paris afin de tenter, avec son aide, de trouver une résolution amiable au conflit. Plus d'informations sur: mediateur-notariat.notaires.fr 

* Le renseignement des champs marqués d'un astérisque est obligatoire en vue de valider votre demande. Les autres champs, non obligatoires, ont pour seul objectif de préciser votre demande et de mieux vous connaître.

** Nous vous informons de l'existence de la liste d'opposition au démarchage téléphonique "BLOCTEL" sur laquelle vous pouvez vous inscrire www.bloctel.gouv.fr.